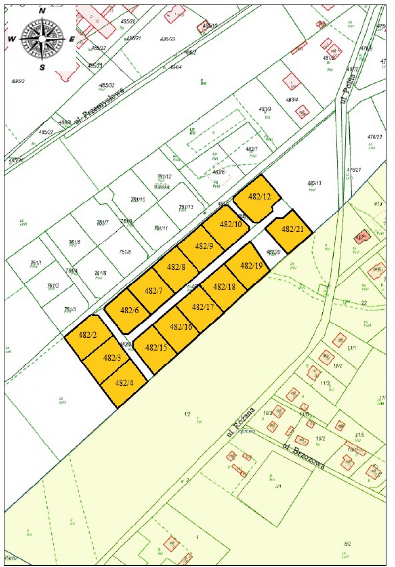
Wójt Gminy Kaliska ogłasza przetarg na zbycie nieruchomości gruntowych w Kaliskach. Przetarg odbędzie się 30 września 2020 r. o godz. 15:00. w Urzędzie Gminy Kaliska w sali narad.
Ogłoszenie o przetargu:
Działki pod budownictwo mieszkaniowe w Kaliskach /media/pliki/dzialki-przetarg/skan-ogloszenia.pdf
Zgłoszenie udziału w przetargu
