Accessibility
UE

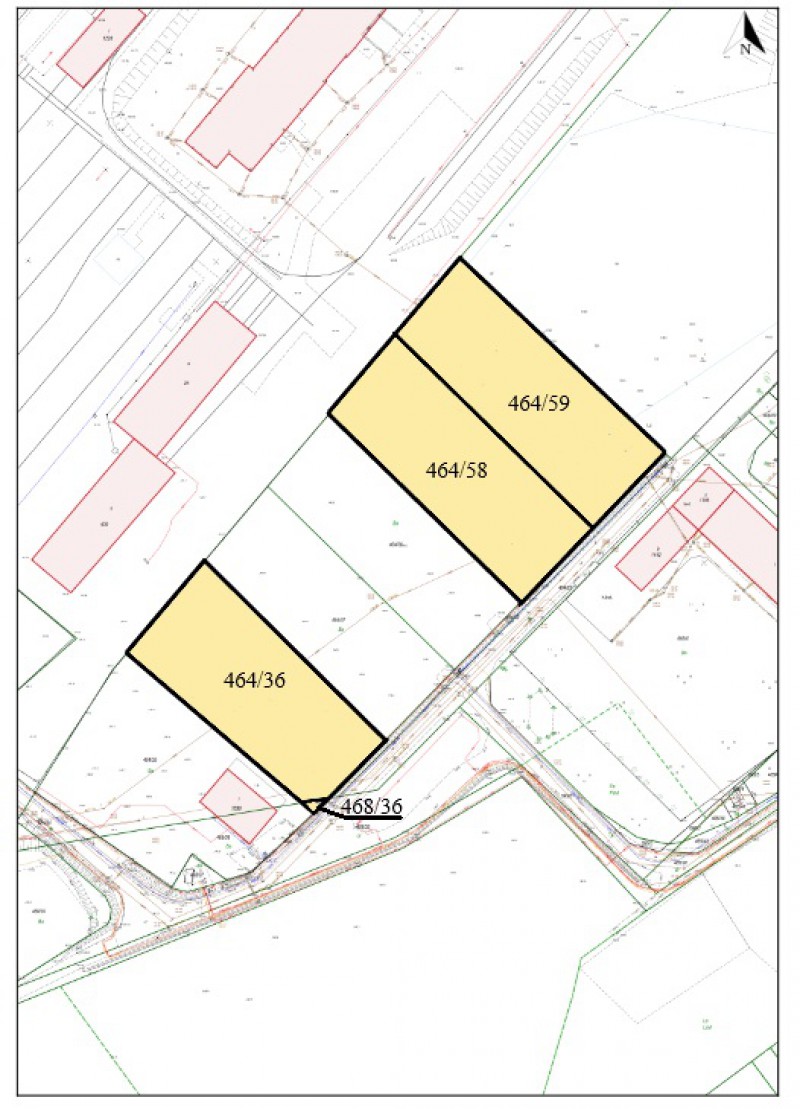
Wójt Gminy Kaliska ogłasza przetarg na zbycie nieruchomości gruntowych

Wójt Gminy Kaliska ogłasza przetarg na zbycie nieruchomości gruntowych w Kaliskach. Przetarg odbędzie się 06 lipca 2022 r. o godz. 14:00. w Urzędzie Gminy Kaliska w sali narad.

 

Ogłoszenie o przetargu:

/media/pliki/dzialki-przetarg/ogloszenie-i-przetarg-ustny-nieograniczony-na-sprzedaz-nieruchomosci-stanowiacych-wlasnosc-gminy-kaliska.pdf

 

Zalacznik-nr-1.docx

 

 Zalacznik-nr-2.docx